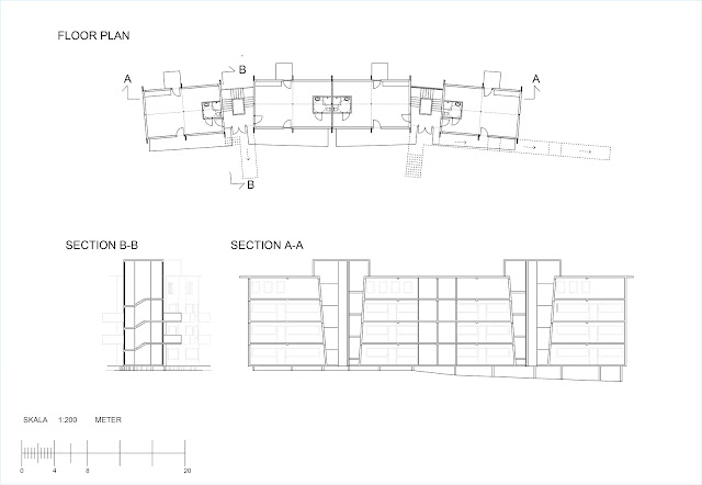
Light House, "affordable housing"
Affordable houses in needed all over the World With the computer infrastructure You have the possibility to work on distance almost anywhere in the World. Its possible to built and to live in Your favorite Place on Earth This is an proposal on distance work done with trainee at CINEA Katarina Stefanovic.To live in the montain.












Comments